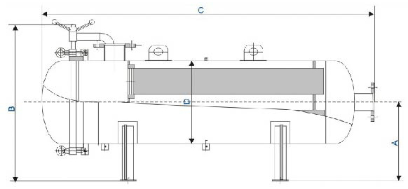
●Materinal:Stainless steel 304#,316L
●Cover opening & closure type: Swing bolt hinged
●Max.pressure:150psi
●Outer surface:polished or sandblast


Model |
A
|
B
|
C
|
D
|
Inlet
|
Drain |
|
1 Round - 40"L 2 Round - 40"L 3 Round - 40"L 4 Round - 40"L |
350 500 580 610 |
530 960 1070 1125 |
1270 1670 1810 1835 |
200 450 500 550 |
2"-3" 3"-4" 4"-6" 5"-6" |
1/2" 1" 1" 1" |